Bồn cầu 2 khối COTTO C12377 là mẫu bồn cầu 2 khối kiểu dáng đẹp của thương hiệu thiết bị vệ sinh COTTO Thái Lan. Bàn cầu chính hãng, miễn phí vận chuyển tại Hà Nội, bảo hành chính hãng.

Thông số kỹ thuật
- Tên sản phẩm: Bồn cầu 2 khối COTTO C12377
- Mã sản phẩm: C12377
- Hãng sản xuất : COTTO
- Dòng sản phẩm: Bồn cầu 2 khối
- Nơi sản xuất: Thái Lan
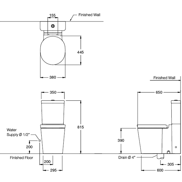
- Thân dài, Strap ( 305mm), nắp đóng êm.
- xả thẳng, 2 nút nhấn 2.5l / 4l. Siêu tiết kiệm nước
- Bao gồm van khóa, đế cầu.
- kích thước :380 x 650 x 815 mm.





